> études urbaines sur les secteurs stratégiques de renouvellement urbain à Ramonville-Saint-Agne
– 31 (en cours), avec Vitam ingenierie
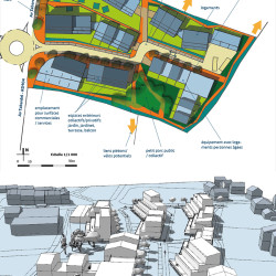
> esquisse d’aménagement en vue d’une OAP pour la commune du Monastère / Rodez Agglo
– 12 (2024), avec Projex VRD
> esquisse d’aménagement en vue d’une OAP pour la commune de Sainte-Radegonde / Rodez Agglo
– 12 (2023)
> étude de programmation urbaine sur 5 sites dans le cadre du programme de renouvellement urbain du quartier du Grand Garros à Auch
– 32 (2023)
> mission de programmation pour le regroupement de services de la Communauté de Communes du Quercy-Caussadais dans l’ancien lycée Jean-Louis Étienne de Caussade
– 82 (2024), avec le BET VITAM Ingenierie programmation architecturale, mandataire
> étude urbaine pour un nouveau quartier à Pins-Justaret
– 31 (2021)
> étude urbaine & esquisse d’aménagement pour un nouveau quartier, Sébazac-Concorès pour le Grand Rodez
– 12 (2020)
> mission de programmation urbaine & d’AMO sur le site du CHU de Larrey à Toulouse
– 31 (2018), avec Projex VRD
> missions d’étude d’urbanisme durable pour le Grand Rodez
– 12, communes de Sainte-Radegonde (2014) & Luc-La-Primaube (secteur de Landouze 2014, secteur de Champ Grand 2012)
> étude pour l’aménagement d’un lotissement, Luc-la-Primaube
– 12 (2013)
> missions d’urbaniste-paysagiste conseil pour la Ville de Montauban
– 82 (quartiers des hameaux de Birac, Saint Hilaire, Falguières, Fonneuve / 2014, 2013, 2012, 2011)
> étude d’organisation du site de l’IUT de Tarbes
– 65 (2013)
> assistance à maîtrise d’ouvrage / diagnostic urbain partagé, programme et orientations d’aménagement pour un nouveau quartier, secteur Pradettes/Bordeblanche à Toulouse
– 31 (2011)
> étude urbaine préalable à l’opération reconstruction/démolition de la cité HLM Bel-Air à Auterive
– 31 (2005), avec Christophe Chambolle écologue
> étude d’aménagement du quartier de la Madeleine à Auterive
– 31 (2004)






























